Industries
Industries
Real Estate
Sell homes faster






Commercial & Residential
Commercial & Residential
Commercial & Residential
Matterport Pro-3 Virtual Tours
Matterport Pro-3 Virtual Tours
Matterport Pro-3 Virtual Tours
Bring your listings to life with immersive 3D Matterport virtual tours. Instead of static photos, give buyers a 24/7 open house experience—right from their phone or computer. With high-resolution walkthroughs, detailed floorplans, and dollhouse views, EReal360 helps listings stand out, attract more qualified leads, and sell faster.
In today's market, first impressions happen online. Make yours unforgettable.
24 hour turn around time
Bring your listings to life with immersive 3D Matterport virtual tours. Instead of static photos, give buyers a 24/7 open house experience—right from their phone or computer. With high-resolution walkthroughs, detailed floorplans, and dollhouse views, EReal360 helps listings stand out, attract more qualified leads, and sell faster.
In today's market, first impressions happen online. Make yours unforgettable.
24 hour turn around time
Bring your listings to life with immersive 3D Matterport virtual tours. Instead of static photos, give buyers a 24/7 open house experience—right from their phone or computer. With high-resolution walkthroughs, detailed floorplans, and dollhouse views, EReal360 helps listings stand out, attract more qualified leads, and sell faster.
In today's market, first impressions happen online. Make yours unforgettable.
24 hour turn around time



31
Fewer days on market
31
Fewer days on market
9%
Higher sale prices
9%
Higher sale prices
85%
Reduction in commercial real estate transaction time
85%
Reduction in commercial real estate transaction time
24/7
Access
24/7
Access
31
Fewer days on market
31
Fewer days on market
9%
Higher sale prices
9%
Higher sale prices
85%
Reduction in commercial real estate transaction time
85%
Reduction in commercial real estate transaction time
24/7
Access
24/7
Access
Digital Twin
$0.07
/per sq ft
Matterport Digitl Twin
24/7 Access
Dollhouse view
Custom Mattertags
Exterior 360s
Popular
Digital Twin, Schematic
Floor Plan, & HDR Photo
$0.10
/per sq ft
Matterport Digitl Twin
24/7 access
Dollhouse view
Custom Mattertags
Exterior 360s
HDR Interior Photos
Complete Schematic Floorplan
Full Package w/ Drone Video & Professional Photography
$425 + $0.10
/per sq ft
Matterport Digitl Twin
Exterior 360s
Custom Mattertags
24/7 access
HDR Interior & Exterior Photos
Complete Schematic Floorplan
4K, edited & processed, drone video
Digital Twin
$0.07
/per sq ft
Matterport Digitl Twin
24/7 Access
Dollhouse view
Custom Mattertags
Exterior 360s
Popular
Digital Twin, Schematic
Floor Plan, & HDR Photo
$0.10
/per sq ft
Matterport Digitl Twin
24/7 access
Dollhouse view
Custom Mattertags
Exterior 360s
HDR Interior Photos
Complete Schematic Floorplan
Full Package w/ Drone Video & Professional Photography
$425 + $0.10
/per sq ft
Matterport Digitl Twin
Exterior 360s
Custom Mattertags
24/7 access
HDR Interior & Exterior Photos
Complete Schematic Floorplan
4K, edited & processed, drone video
Digital Twin
$0.07
/per sq ft
Matterport Digitl Twin
24/7 Access
Dollhouse view
Custom Mattertags
Exterior 360s
Popular
Digital Twin, Schematic
Floor Plan, & HDR Photo
$0.10
/per sq ft
Matterport Digitl Twin
24/7 access
Dollhouse view
Custom Mattertags
Exterior 360s
HDR Interior Photos
Complete Schematic Floorplan
Full Package w/ Drone Video & Professional Photography
$425 + $0.10
/per sq ft
Matterport Digitl Twin
Exterior 360s
Custom Mattertags
24/7 access
HDR Interior & Exterior Photos
Complete Schematic Floorplan
4K, edited & processed, drone video
New Construction
New Construction
New Construction
Interactive, 3D Pre-Dry Wall, Digital Twins
Interactive, 3D Pre-Dry Wall, Digital Twins
Interactive, 3D Pre-Dry Wall, Digital Twins
With our 3D digital twins, builders can document every pipe, wire, and stud before drywall goes up. With digital measurements in the model—it’s a powerful tool for future maintenance, inspections, and liability protection. One scan preserves your entire MEP layout in crystal-clear detail, saving time and costly guesswork down the line.
Build smarter. Document now. Avoid surprises later.
Provides homeowners with a detailed record of what’s behind their walls—plumbing, electrical, HVAC—everything. Need to mount a TV, locate a pipe, or run new wiring years later? It’s all just a click away. No guesswork. No unnecessary damage. Just confidence in your home for years to come.
With our 3D digital twins, builders can document every pipe, wire, and stud before drywall goes up. With digital measurements in the model—it’s a powerful tool for future maintenance, inspections, and liability protection. One scan preserves your entire MEP layout in crystal-clear detail, saving time and costly guesswork down the line.
Build smarter. Document now. Avoid surprises later.
Provides homeowners with a detailed record of what’s behind their walls—plumbing, electrical, HVAC—everything. Need to mount a TV, locate a pipe, or run new wiring years later? It’s all just a click away. No guesswork. No unnecessary damage. Just confidence in your home for years to come.
With our 3D digital twins, builders can document every pipe, wire, and stud before drywall goes up. With digital measurements in the model—it’s a powerful tool for future maintenance, inspections, and liability protection. One scan preserves your entire MEP layout in crystal-clear detail, saving time and costly guesswork down the line.
Build smarter. Document now. Avoid surprises later.
Provides homeowners with a detailed record of what’s behind their walls—plumbing, electrical, HVAC—everything. Need to mount a TV, locate a pipe, or run new wiring years later? It’s all just a click away. No guesswork. No unnecessary damage. Just confidence in your home for years to come.
100%
As built accuracy
100%
As built accuracy
$1,000s saved
Avoid unnecessary demo work
$1,000s saved
Avoid unnecessary demo work
60%
Faster contractor estimates, just send the scan
60%
Faster contractor estimates, just send the scan
24/7
Remote access
24/7
Remote access
Pre-Drywall
Pre-Drywall
100%
As built accuracy
$1,000s saved
Avoid unnecessary demo work
60%
Faster contractor estimates, just send the scan
24/7
Remote access
100%
As built accuracy
100%
As built accuracy
60%
Faster contractor estimates, just send the scan
60%
Faster contractor estimates, just send the scan
$1,000s saved
Avoid unnecessary demo work
$1,000s saved
Avoid unnecessary demo work
60%
Faster contractor estimates, just send the scan
60%
Faster contractor estimates, just send the scan
24/7
Remote access
24/7
Remote access
60%
Faster contractor estimates, just send the scan
60%
Faster contractor estimates, just send the scan

Dollhouse
Professional 3D capture using method scanning. No holes, no artifacts.

Dollhouse
Professional 3D capture using method scanning. No holes, no artifacts.

Virtual Walkthrough
Smooth interactive walkthrough in crisp 134 Megapixel resolution

Virtual Walkthrough
Smooth interactive walkthrough in crisp 134 Megapixel resolution

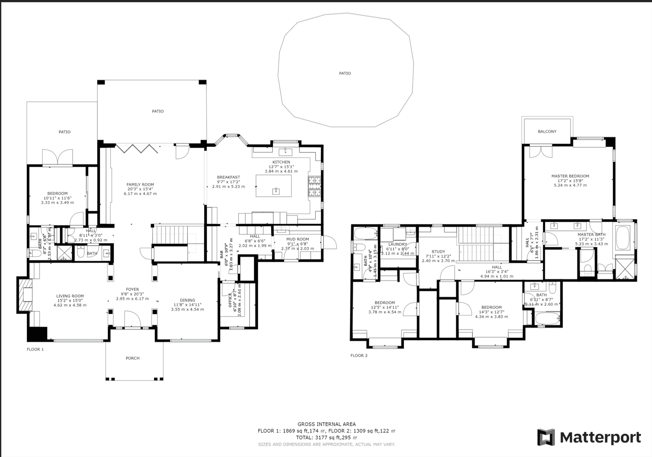
Schematic Floor Plans
Room dimensions and labeling

Schematic Floor Plans
Room dimensions and labeling

Interactive Measurements
Take measurements of anything virtually

Interactive Measurements
Take measurements of anything virtually

Easily Shared
Share to your MLS, website, or anywhere with ease

Easily Shared
Share to your MLS, website, or anywhere with ease

Virtual Walkthrough
Smooth interactive walkthrough in crisp 134 Megapixel resolution

Interactive Measurements
Take measurements of anything virtually

Dollhouse
Professional 3D capture using method scanning. No holes, no artifacts.

Schematic Floor Plans
Room dimensions and labeling

Easily Shared
Share to your MLS, website, or anywhere with ease
Features
Features
Features
Features
Features
Drone & Photography
Drone & Photography
Drone & Photography
Drone & Photography




